Signed in as:
filler@godaddy.com

In Zusammenarbeit mit Hartl Haus entstand dieses Einfamilienhaus mit Pool und Bibliothek

Entwicklung eines Einfamilienhauses mit Pool

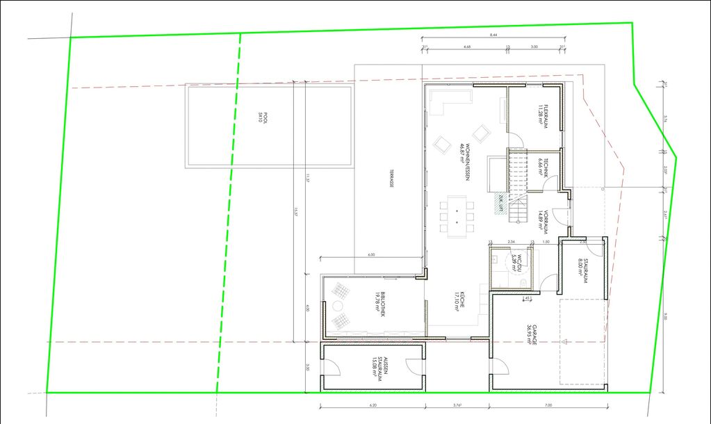
3D Grundriss Ansicht vom Erdgeschoss

3D Ansicht des Hauses mit der Bibliothek und dem Pool auf der Südseite.

Die 3D-Ansicht des Hauses mit der Bibliothek und dem Pool zeigt besonders die großen Fenstertüren im Obergeschoss.

Die West-Ansicht des Hauses zeigt die Hanglage im Mostviertel
PLANITEKTUR | Planen | Entwickeln | Visualisieren
Copyright © 2024 PLANITEKTUR | Planen | Entwickeln | Visualisieren - All Rights Reserved.
Powered by Planitektur